Menü

Bebauungspläne im Verfahren

Die Gemeinde Kressbronn a. B. möchte die Bürgerinnen und Bürger ganz besonders über die noch nicht abgeschlossenen Bebauungsplanverfahren informieren. Auf dieser Seite erhalten Sie einen Überblick und alle Informationen zu laufenden Bebauungsplanverfahren. Insbesondere können Sie einsehen, in welchem Verfahrensstadium sich der jeweilige Bebauungsplan gerade befindet. Eine allgemeine Erklärung über Arten und Ablauf von Bebauungsplanverfahren finden Sie unter "Bebauungsplanverfahren kurz erklärt". 

 

Altenpflegeheim Haus St. Konrad - Teiländerung

Ziel des Bebauungsplans ist die Schaffung eines alters- und seniorengerechten Wohnraumangebotes neben dem bisherigen Pflegeheim St. Konrad in Zusammenarbeit mit der Stiftung Liebenau.    

Vorhabenbezogener Bebauungsplan im Regelplanverfahren gemäß § 12 BauGB.

Baugebiet Moos l

Ziel der Gemeinde ist es, mit dem Baugebiet zur Schaffung von dringend benötigtem Wohnraum wie auch zur Schaffung von Bauplätzen für die örtliche Bevölkerung beizutragen.

Regelplanverfahren gemäß §§ 8 ff. BauGB.

Das Verfahren wurde in der Gemeinderatssitzung vom 25.10.2023 vom beschleunigten Bebauungsplanverfahren gemäß § 13b BauGB auf das Regelplanverfahren umgestellt.

Berg-Mitte

Für den Bereich Berg-Mitte besteht seit 1989 ein Bebauungsplan, der im Kernbereich ein Dorfgebiet festsetzt und Ferienwohnungen ausdrücklich ausschließt. Ein Wohnungseigentümer beantragte dennoch eine Nutzungsänderung zur Ferienwohnung. Nachdem sowohl das Baurechtsamt als auch das Regierungspräsidium dies ablehnten, klagte der Eigentümer erfolgreich vor dem Verwaltungsgericht Sigmaringen. Dieses urteilte, dass der Ausschluss von Ferienwohnungen im bestehenden Bebauungsplan nicht wirksam sei. Um dem Urteil zu begegnen und Ferienwohnungen weiterhin auszuschließen, beschloss der Gemeinderat die Aufstellung eines neuen Bebauungsplans im beschleunigten Verfahren. Vorgesehen ist die Umwandlung des Dorfgebiets in ein Sondergebiet. Zur Sicherung der Planung wurde eine Veränderungssperre erlassen.

Beschleunigtes Bebauungsplanverfahren gemäß § 13a BauGB.

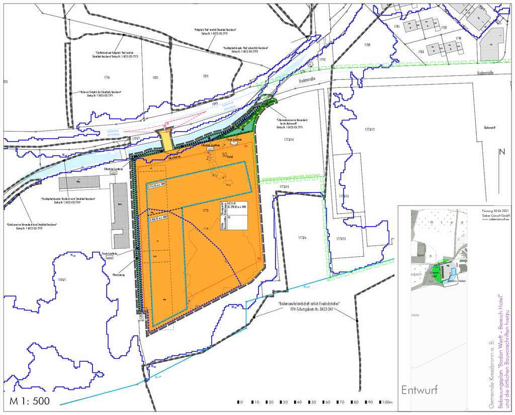
Bodan-Werft – Bereich Hotel

Ziel des Bebauungsplans ist die touristische Entwicklung der Fläche der ehemaligen Bodan-Werft zwischen dem Naturstrandbad und dem Bodan-Areal. Es soll Baurecht für ein Hotel mit Restaurantbetrieb geschaffen werden.

Regelplanverfahren gemäß §§ 8 ff. BauGB.

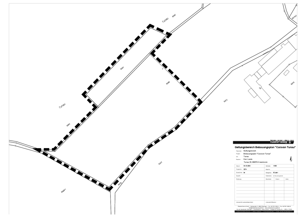
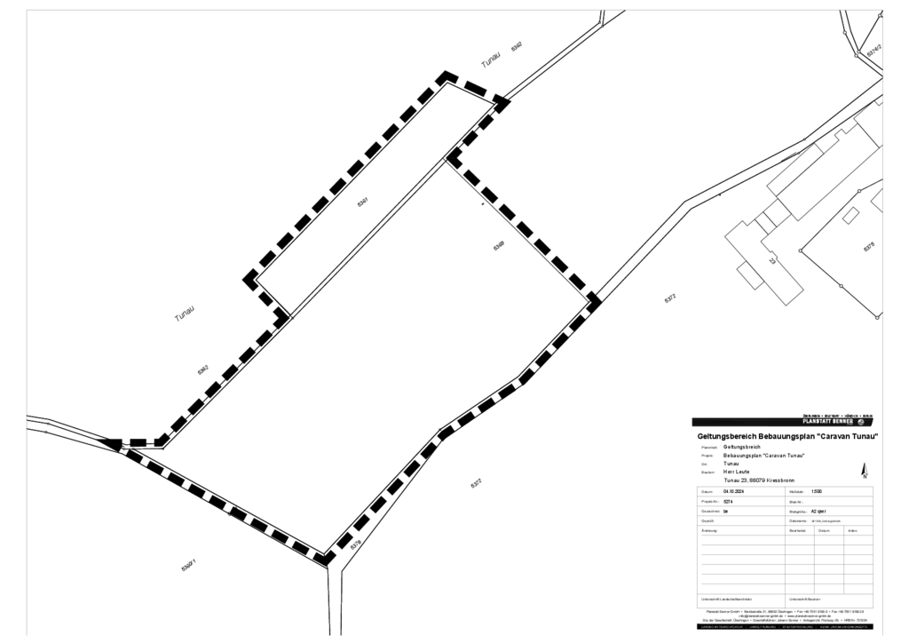
Caravanstellplatz Tunau

Das Ziel des Bebauungsplans ist die bestehende Stellplatznutzung baurechtlich zu sichern und eine moderate Erweiterung zu ermöglichen. Damit soll das touristische Angebot der Gemeinde weiter ausgebaut werden. Eine weitere Ausweitung in den sensiblen Naturraum soll vermieden werden.

Regelplanverfahren gemäß §§ 8 ff. BauGB.

Erzeugermärkte Raiffeisenstraße – 1. Änderung und Erweiterung

Ziel des Bebauungsplans ist es, Erweiterungsmöglichkeiten für die BayWa und die Weinkellerei Steinhauser zu schaffen. 

Vorhabenbezogener Bebauungsplan im Regelplanverfahren gemäß § 12 BauGB.

Lagerplatz Kapellenesch

Die Gemeinde benötigt eine Lagerfläche zur Lagerung bzw. Zwischenlagerung für die Beprobung des Bodenmaterials, das bei Baumaßnahmen der Gemeinde anfällt.

Regelplanverfahren gemäß §§ 8 ff. BauGB.

Seestraße

Ziel des Bebauungsplans ist, im Bereich des Kreuzungsbereiches der Lindauer Straße mit der Seestraße die Bebaubarkeit der bisher unbebauten Flächen zu regeln und zu ordnen sowie die Mischnutzung aus Gewerbe und Wohnen in diesem Bereich zu erhalten. 

Beschleunigtes Bebauungsplanverfahren gemäß § 13a BauGB.

Sondergebiet – VABA Center Bodensee

Bislang ist für den Bereich ein Gewerbegebiet vorgeschrieben. Es soll nun in ein Teilgebiet festgesetzt werden, das insbesondere die Nutzungen für ein Bistro mit Biergarten, Bar sowie Schank- und Speisewirtschaft, Veranstaltungsräume, Werkstätten, Verkaufsläden und Büros zulässt.

Beschleunigtes Bebauungsplanverfahren gemäß § 13a BauGB.

Vorhabenbezogener Bebauungsplan Argenstraße (Drogeriemarkt)

Ziel des Bebauungsplans ist die Ansiedlung eines Drogeriefachgeschäfts auf dem Areal des Bodenseemarktes Edeka Esslinger. Es ist vorgesehen, einen Drogeriemarkt mit einer Verkaufsfläche von 700 m², Gewerbeeinheiten, Wohnungen und eine Tiefgarage zu etablieren.

Vorhabenbezogenes Bebauungsplanverfahren als beschleunigtes Bebauungsplanverfahren gemäß §§ 12,13a BauGB auf Antrag.

Zurück