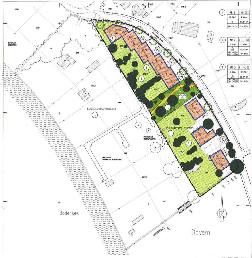
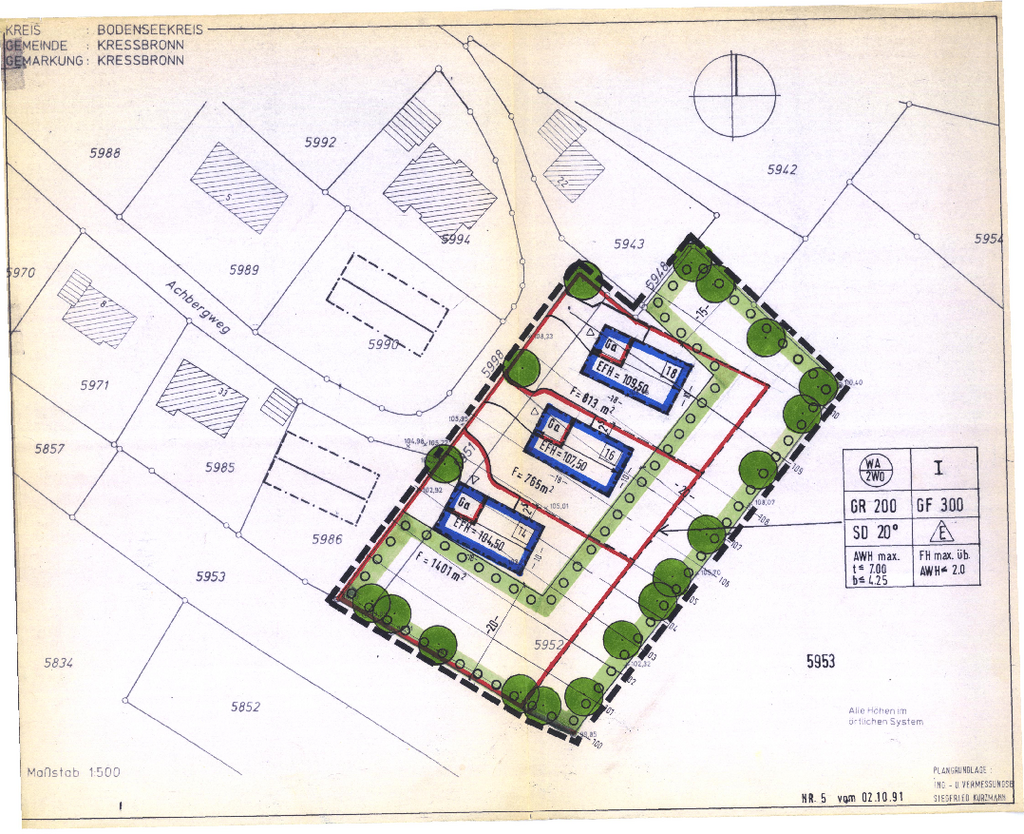
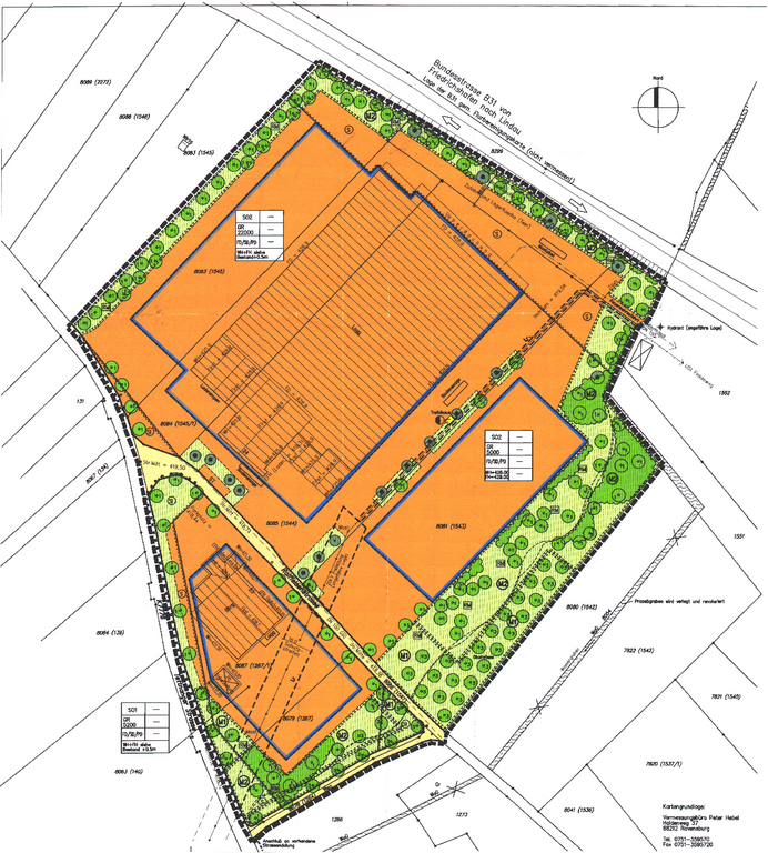
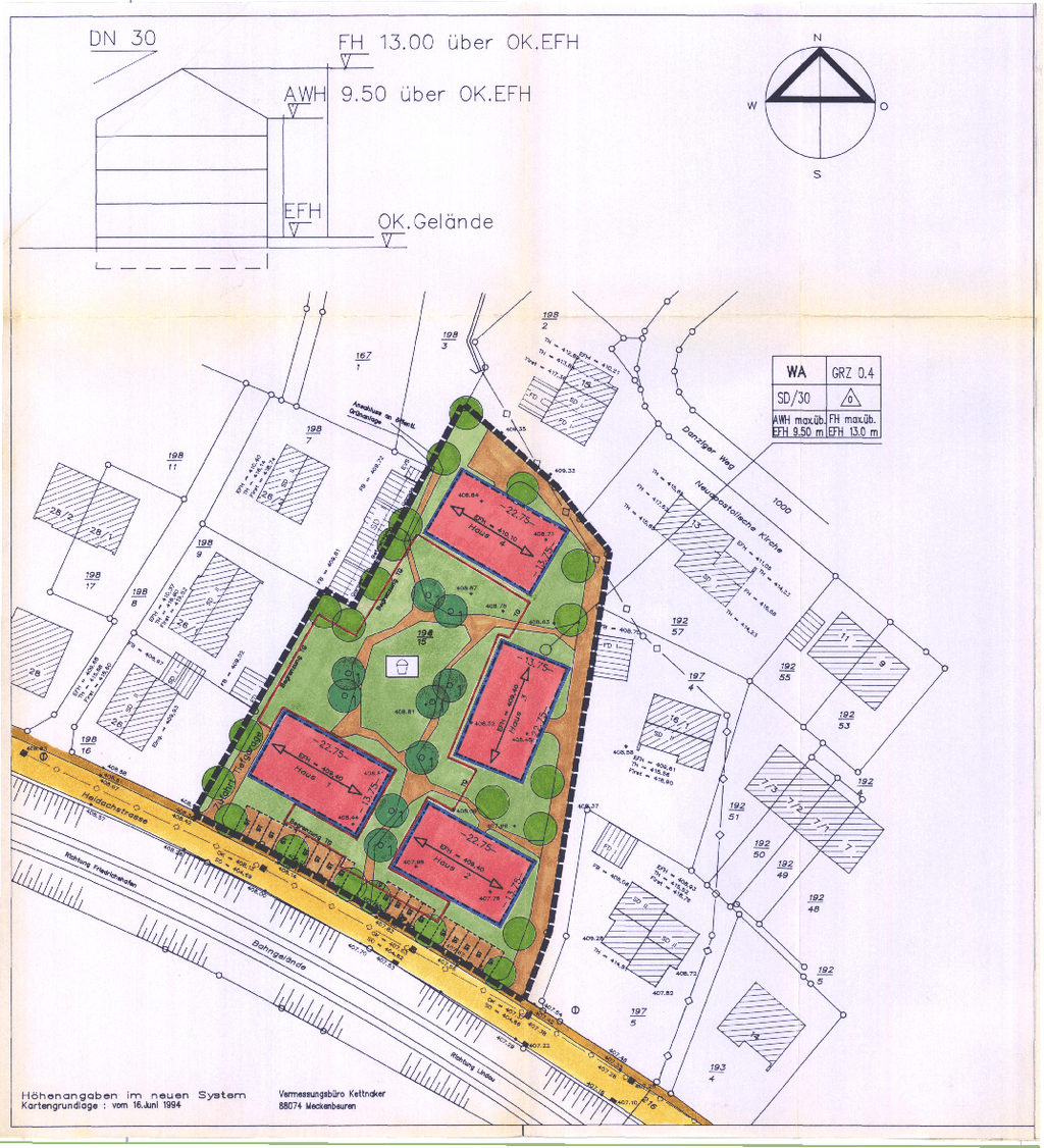
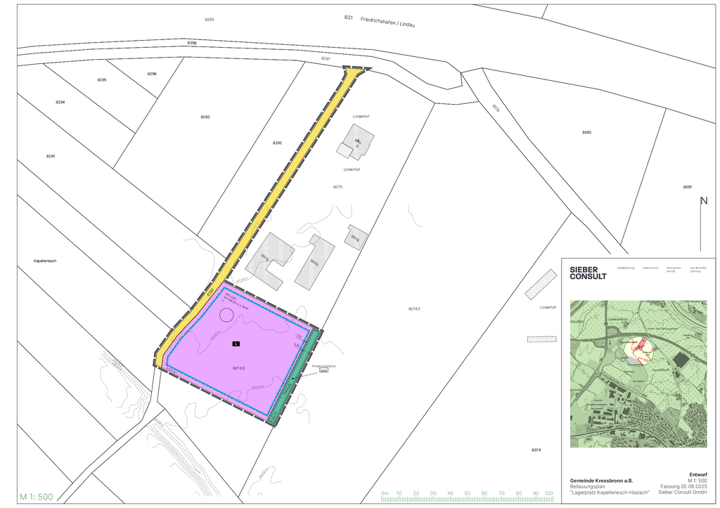
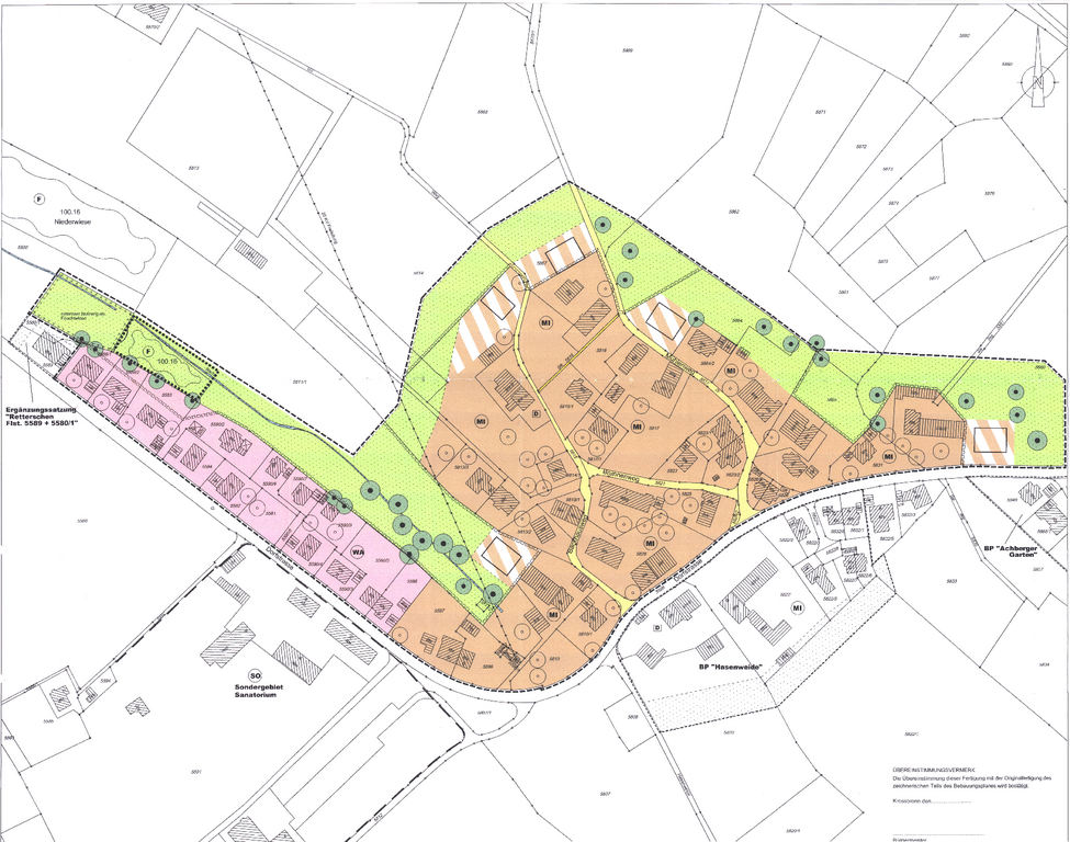
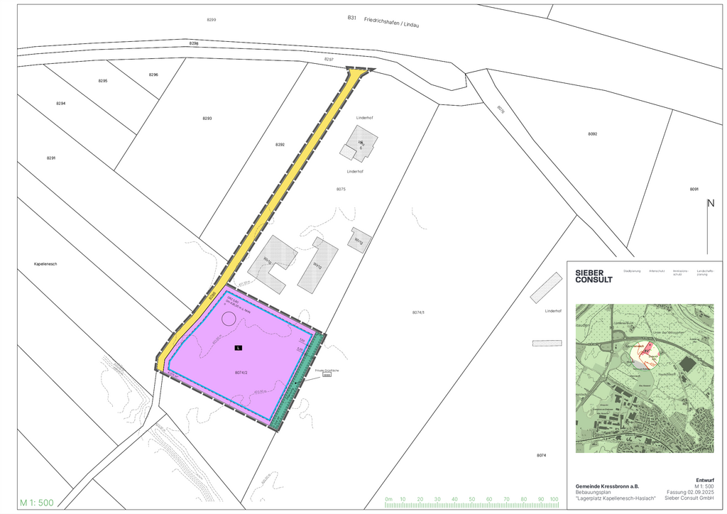
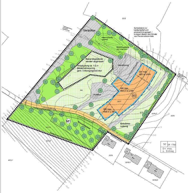
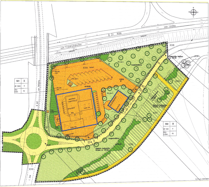
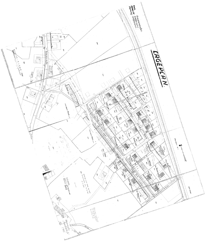
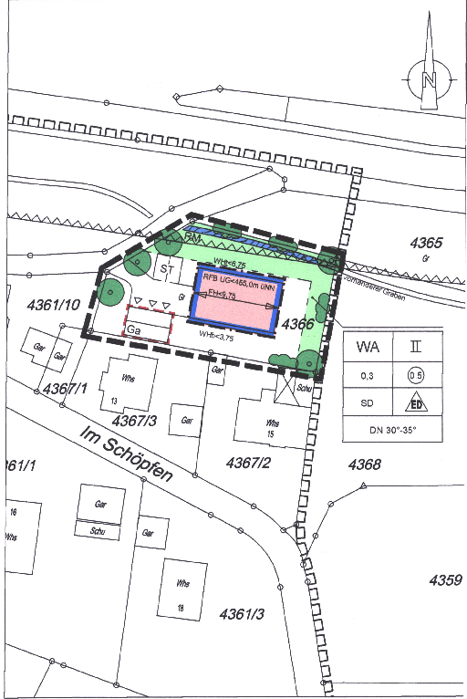
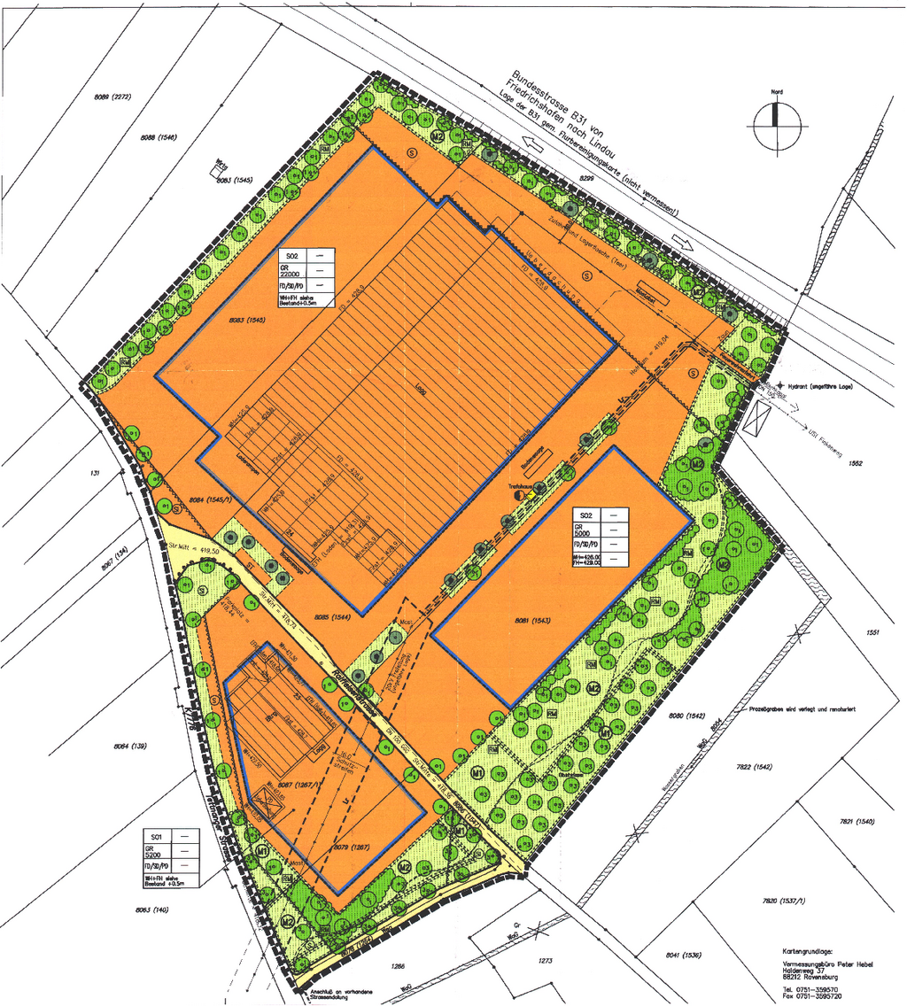
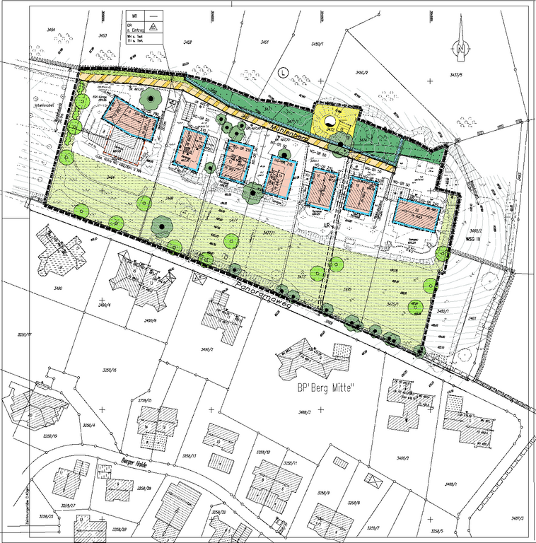
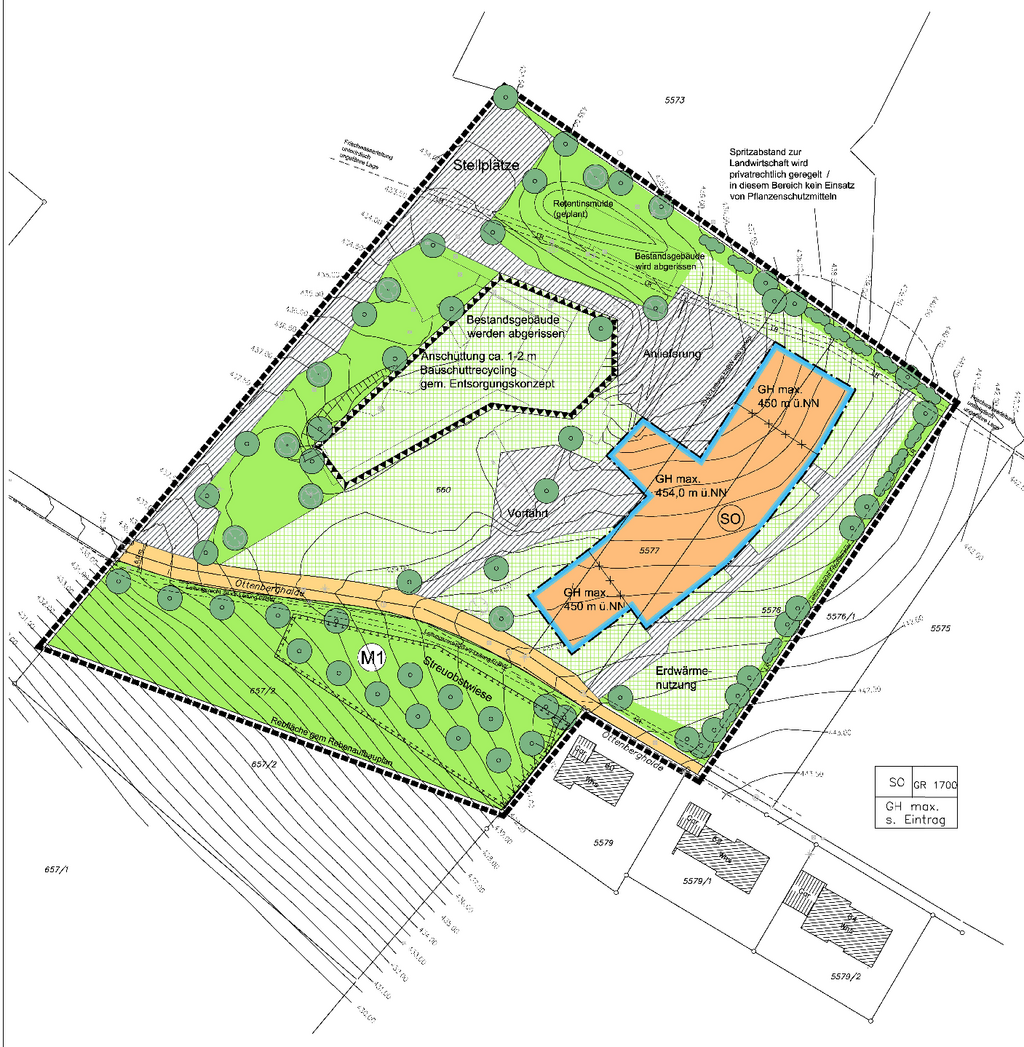
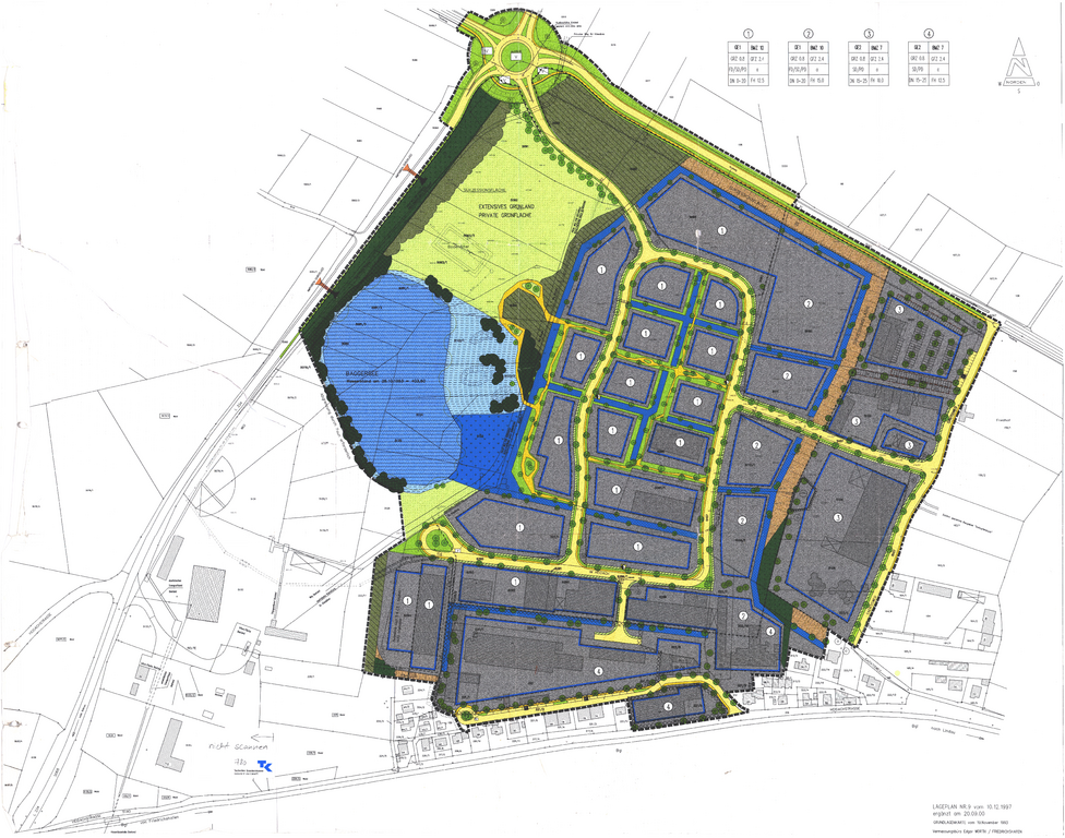
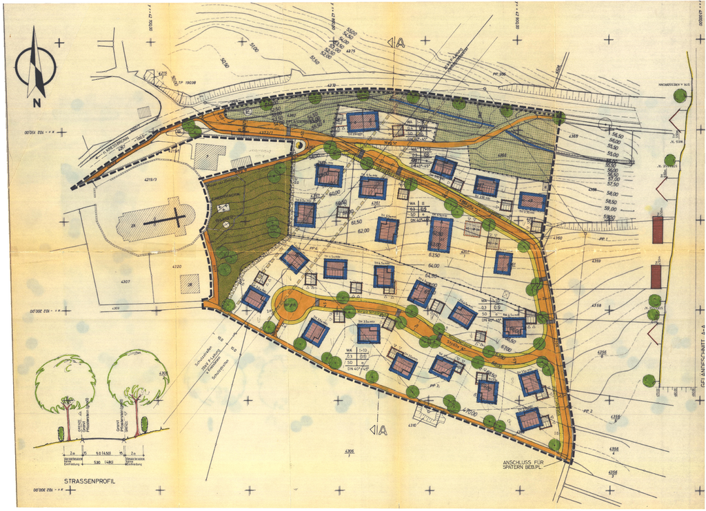
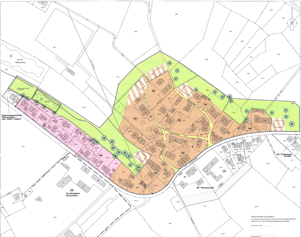
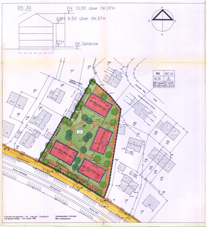
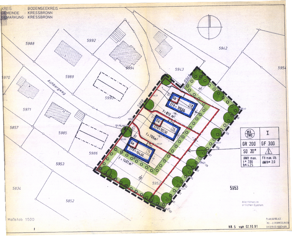
Für Bebauungspläne gibt es keine zwingend einheitliche Darstellungsweise. Allerdings ergeben sich bestimmte Vorgaben aus der Baunutzungsverordnung (BauNVO) und der Planzeichenverordnung (PlanZV).
Ein Bebauungsplan besteht immer aus einem Plan- und einem Textteil. Die im Planteil dargestellten oder im Textteil niedergeschriebenen Regelungen nennt man Festsetzungen. Der Textteil dient darüber hinaus auch der Begründung der Regelungen des Bebauungsplans.
Hier werden die wichtigsten Regelungen und Informationen, die man in einem Bebauungsplan findet, kurz erklärt.
Im Geo-Informationsportal können Sie über eine Karte herausfinden, ob es einen Bebauungsplan für einen bestimmten Bereich gibt. Hierfür müssen Sie das Geo-Informationsportal öffnen, auf den letzten Reiter "Planung und Bauen" klicken und bei den Bebauunsplänen einen Haken setzen. Den Plan- und Textteil zum Bebauungsplan finden Sie auf dieser Seite.
